Ruime charmante pastorijwoning op 5a47ca
Pastorijwoning voor € 439.500
Heidelandstraat 13, 3950 Bocholt
Ref: spir1536


































3 slaapkamers
175m2 woonopp.
547m2 grondopp.
EPC: 40 kWh/m2
Bouwjaar: 2018
Omschrijving
NIEUWE VOORWAARDEN!!
IN OPTIE !!
Mooie recente pastorijwoning (ca 175m²) op perceel van 5a47ca.
Rustig gelegen in nieuwe verkaveling te Kaulille.
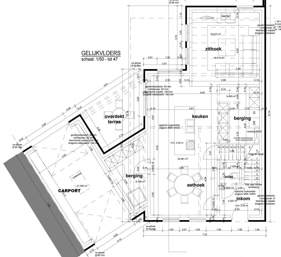
Op gelijkvloers bestaande uit inkomhal, wc, ruime woonkamer met open ingerichte open keuken, berging, aparte inkom zijkant.
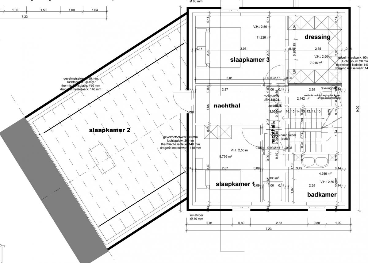
Op verd 1 bestaande uit nachthal, 3 slaapkamers (waarvan 1 met dressing ruimte), badkamer voorzien van inloopdouche, badmeubel. Aparte wc.
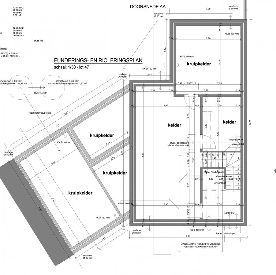
Kelder aanwezig van ca 82m². Tevens kruipkelder.
CV aardgas.
12 zonnepanelen.
Zeer goed epc 40kwh/m² (label a).
IN OPTIE !!
Mooie recente pastorijwoning (ca 175m²) op perceel van 5a47ca.
Rustig gelegen in nieuwe verkaveling te Kaulille.
Op gelijkvloers bestaande uit inkomhal, wc, ruime woonkamer met open ingerichte open keuken, berging, aparte inkom zijkant.
Op verd 1 bestaande uit nachthal, 3 slaapkamers (waarvan 1 met dressing ruimte), badkamer voorzien van inloopdouche, badmeubel. Aparte wc.
Kelder aanwezig van ca 82m². Tevens kruipkelder.
CV aardgas.
12 zonnepanelen.
Zeer goed epc 40kwh/m² (label a).
Ruimtelijke ordening
Bouwvergunning | Ja |
Recente bestemming | Woongebied |
Dagvaardingen | Nee |
Rechterlijke herstelmaatregel | Nee |
Bestuursdwang | Nee |
Last onder dwangsom | Nee |
Minnelijke schikking | Nee |
Voorkooprecht | Nee |
Verkavelingsvergunning | Ja |
Effectief overstromingsgevoelig | Nee |
Mogelijk overstromingsgevoelig | Nee |
Afgebakend overstromingsgebied | Nee |
Afgebakende oeverzone | Nee |
Risicozone voor overstromingen | Nee |
G-score | A |
P-score | A |
Maakt deel uit van voorkeursbesluit of projectbesluit | Nee |
Beschermd pand? | Nee |
Beschermd monument | Nee |
Beschermd landschap | Nee |
Beschermd cultuurhistorisch landschap | Nee |
EPC gegevens
EPC waarde | 40 kWh/m² |
40
Comfort
Keukentype | Geïnstalleerd |
Badkamer type | Ingericht |
Verwarming | Aardgas |
Financiële info
Prijs | € 439.500,00 |
Registratierechten en erelonen | € 12.409,16 |
Overige Info
Tuin aanwezig | ja |
Bebouwing
Bouwjaar | 2018 |
Aantal slaapkamers | 3 |
Aantal wc's | 2 |
Grond oppervlakte | 547 m² |
Woonoppervlakte | 175 m² |
Elektrisch keuringsattest | Niet ingegeven |
Renovatieplicht | Nee |
Alle aanbiedingen gelden onder voorbehoud van fouten, eerdere verkoop, prijswijzigingen of vergetelheid.